ZADZWOŃ: 515594047
Pamiętaj, że współpracując z HomeOn – biurem nieruchomości działającym na terenie Śląska i Zagłębia, otrzymujesz pełną obsługę.
Pomoc w finansowaniu zakupu: KUPIMY TWOJE dotychczasowe MIESZKANIE LUB DOM ZA GOTÓWKĘ, możliwa ZAMIANA, lub pomożemy w uzyskaniu KORZYSTNEGO KREDYTU (na zakup i remont).
Wesprzemy Cię w uzyskaniu ATRAKCYJNEJ CENY zakupu, a następnie zapewnimy pełną obsługę notarialną wraz z weryfikacją nieruchomości.
INFORMACJE I DANE TECHNICZNE (KW)
Powierzchnia mieszkalna: 76,42m2
Piwnica: tak
Balkon: tak
Piętro: 1
Czynsz : 380 zł
Opłaty wg liczników: prąd, woda, gaz
Woda ciepła: CO własne gazowe – kocioł dwufunkcyjny
Ogrzewanie: CO własne gazowe – kocioł dwufunkcyjny
Dostępne media: prąd , woda, gaz, internet, TV kablowa
Okna: PCV
Parking: ogólnodostępny, przy budynku.
Na sprzedaż wyjątkowe mieszkanie, 3 przestronne pokoje z dużym balkonem, zlokalizowane w centrum. Budynek jest w dobrym stanie technicznym, posiada zadbaną klatkę schodową oraz zabezpieczenie w postaci kamer i domofonu. Do mieszkania przynależy również piwnica.
ŚWIETNY ROZKŁAD, który daje Ci pełną funkcjonalność.
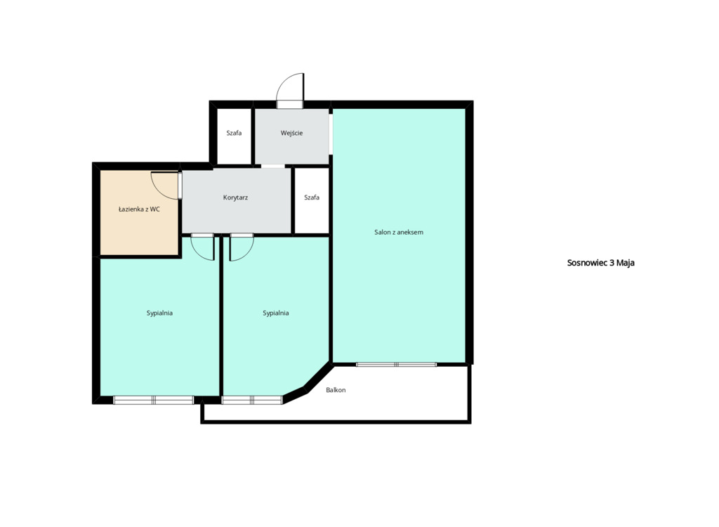
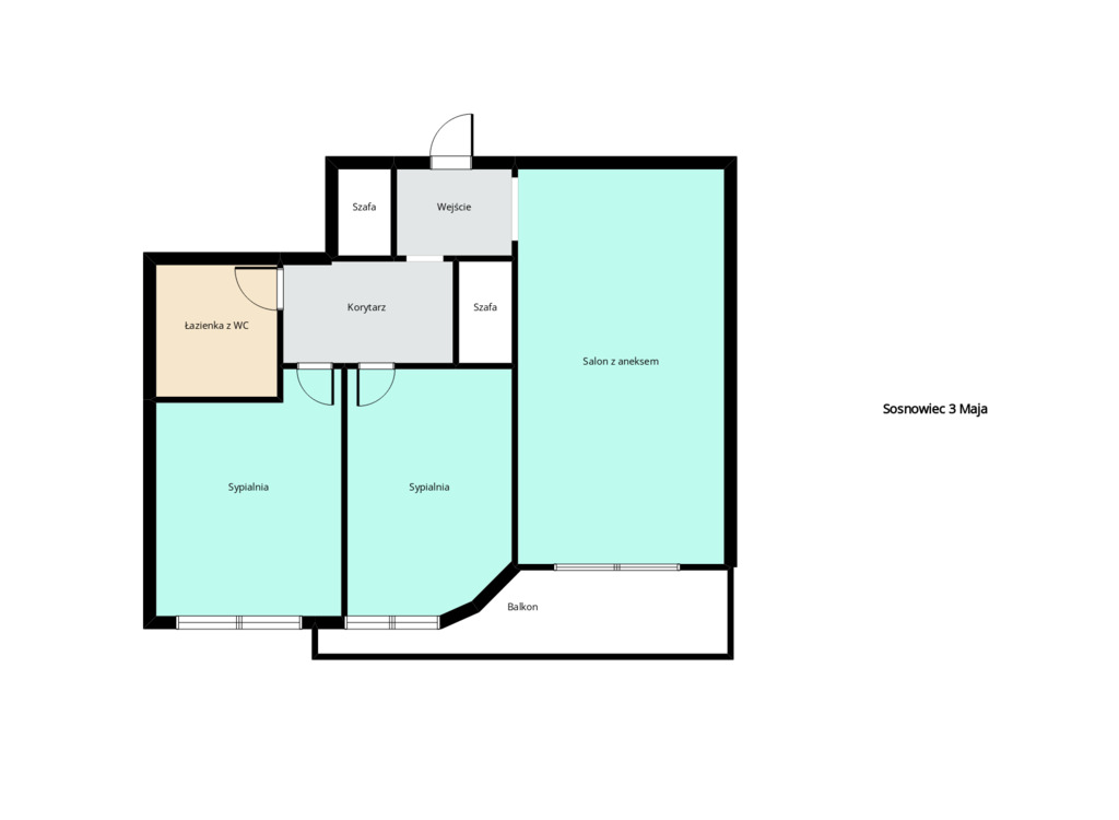
(Rzut pomieszczeń zdjęcie nr 15) Centralnym punktem mieszkania jest przestronny salon połączony z kuchnią. Otwarta przestrzeń to wygodne rozwiązanie na połączenie strefy wypoczynku z miejscem do przyrządzania i spożywania posiłków. Dwa przestronne dodatkowe pokoje idealnie sprawdzą się jako sypialnia i np. pokój dziecięcy. Komfortowa łazienka posiada prysznic.Komunikacja – przedpokój posiada zabudowaną szafę, dzięki czemu zyskujesz miejsce na wszystkie niezbędne rzeczy oraz dodatkowe miejsce do wykonania kolejnej szafy w zabudowie.
DOSKONAŁA LOKALIZACJA, z której Ty i Twoje dzieci wszędzie będziecie mieć blisko.
Nieruchomość zlokalizowana jest na osiedlu przy ul. 3 Maja. Położenie nieopodal Centrum gwarantuje Ci szybkie połączenia z całą aglomeracją.
Ty i Twoje dzieci będziecie bardzo zadowoleni z pobliskiego placu zabaw, a także żłobków, przedszkoli czy szkół. Dodatkowo w bezpośrednim otoczeniu nieruchomości znajdziesz m.in.: sklepy (żabka, Biedronka), aptekę, przychodnie lekarskie oraz przystanki autobusowe i tramwajowe.
STAN TECHNICZNY, który pozwoli Ci zaoszczędzić na remoncie.
remont generalny zakończył się w 2025 obejmował:
– wymianę instalacji elektrycznej
– wymianę instalacji wodnokanalizacyjnej
– wymianę okien
– wymianę stolarki drzwiowej drzwi wewnętrzne
– wylewki oraz gres i panele
– parapety z konglomeratu
– podwieszane sufity
– nowe punkty świetlne
– cała infrastruktura elektryczna
– gładzie
Nieruchomość jest w stanie idealnym, pomieszczenia nie wymagają odświeżenia. Na ścianach są gładzie, na podłogach panele oraz płytki, sufity są podwieszone.
W cenie pozostaje wyposażenie:
– kuchni – meble, lodówka, płyta gazowa, piekarnik elektryczny, zmywarka, mikrofalówka
– salon – kanapa narożna, szafka pod telewizor, stół i krzesła, klimatyzacja
– sypialnia – łóżko małżeńskie 200×200, Szafka, klimatyzacja
– sypialnia – szafy
– przedpokój – szafa w zabudowie
Mieszkanie, które dzięki lokalizacji oraz rozkładowi sprawdzi się jako wygodne miejsce do życia.
MASZ PYTANIA?
Skontaktuj się z nami tak, jak Ci wygodnie:
Michał Domagała Tel.515594047
e-mail: michał.domagala@homeon.pl


