Opiekun oferty: Bartosz Bołdowski
 790 843 040
 bartosz.boldowski@homeon.pl
Wyślij wiadomość
Powierzchnia:
97.25 m2
Pokoje:
3
Piętro:
4
Budynek:
Kamienica
Typ kuchni:
Rynek:
Wtórny
Stan nieruchomości:
Do adaptacji
Czynsz:
459,50 zł

Opis nieruchomości



Pamiętaj, że współpracując z Home ON Nieruchomości – biurem działającym na terenie Śląska i Zagłębia, otrzymujesz pełną obsługę.

Pomoc w finansowaniu zakupu: KUPIMY TWOJE dotychczasowe MIESZKANIE LUB DOM ZA GOTÓWKĘ, możliwa ZAMIANA, lub pomożemy w uzyskaniu KORZYSTNEGO KREDYTU (na zakup i remont).

Wesprzemy Cię w uzyskaniu ATRAKCYJNEJ CENY zakupu, a następnie zapewnimy pełną obsługę notarialną wraz z weryfikacją nieruchomości.

INFORMACJE I DANE TECHNICZNE:

Powierzchnia mieszkalna: 97.25 m2
Piętro: 4
Czynsz : 459 zł
Opłaty wg liczników: prąd, woda, gaz
Woda ciepła:  do wyboru 
Ogrzewanie: CO miejskie
Dostępne media: prąd , woda, gaz, internet
Okna: PCV 

Na sprzedaż przestronne mieszkanie z dużym potencjałem o powierzchni mieszkalnej 97,25 m2. Nieruchomość zlokalizowana jest przy ul. Józefa Jainty w Bytomiu.
Kameralny budynek mieszkalny usytuowany jest w centrum Bytomia a z okien mamy widok na rynek.

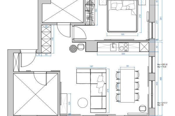
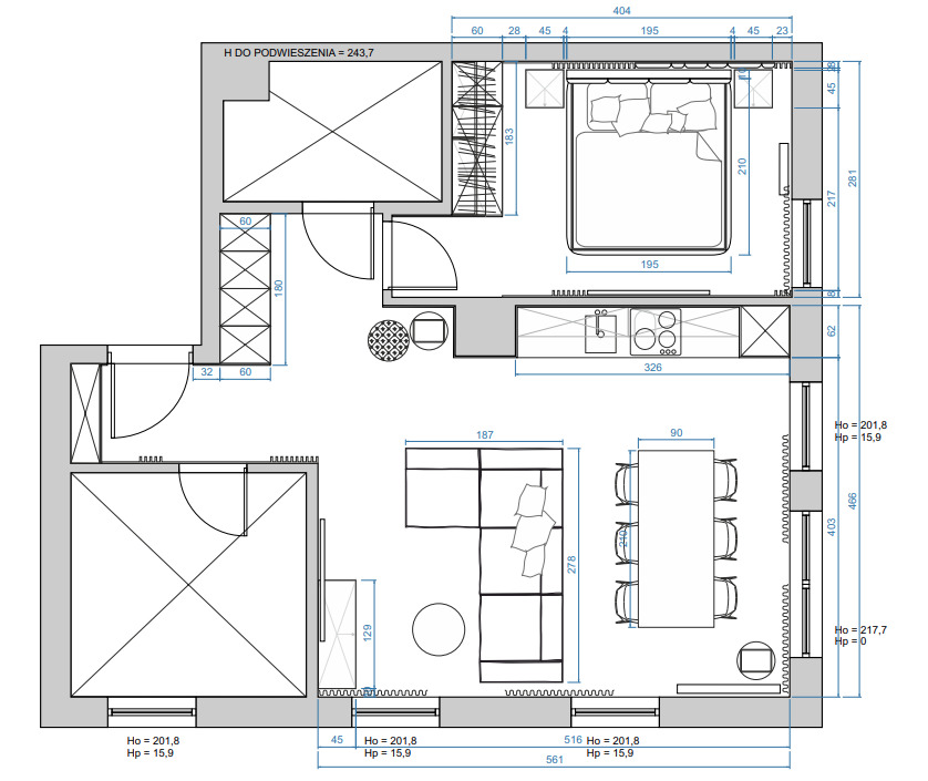
(Rzut wszystkich pomieszczeń patrz zdjęcie nr 5) Centralnym punktem mieszkania jest duży, słoneczny pokój. Dodatkowo dzięki pierwotnie otwartej przestrzeni bez trudu możesz sam wytyczyć swój układ. Dodatkowy jeden pokój idealnie sprawdzi się jako łazienka lub oddzielna kuchnia, gdyż mamy tam dostępne piony instalacji wod-kan.

STAN TECHNICZNY, który da Ci pełną swobodę działania.

Mieszkanie jest ustawne i w pełni funkcjonalne. Położone jest na poddaszu.
Na wizualizacjach są przedstawione przykładowe możliwości zaaranżowania przestrzeni. Nieruchomość wymaga generalnego remontu.

DOSKONAŁA LOKALIZACJA, z której wszędzie będziesz miał blisko.

Nieruchomość jest zlokalizowana w ścisłym centrum Bytomia.  Miejscowość z uwagi na położenie jest świetną alternatywą dla mieszkania w Katowicach.
Mieszkanie, które dzięki lokalizacji oraz rozkładowi sprawdzi się jako wygodne miejsce do życia. Z uwagi na powierzchnię, lokalizację i niskie koszy utrzymania nieruchomość będzie również świetną inwestycją. 

MASZ PYTANIA?
Skontaktuj się tak, jak Ci wygodnie:

Bartosz Bołdowski,
tel. 790 843 040 ,
e-mail: bartosz.boldowski@homeon.pl

Numer oferty: 509/13774/OMS

Pełna obsługa
pomoc na każdym etapie

Pomoc w finansowaniu
pomożemy sprzedać Twoją nieruchomość lub pomożemy w uzyskaniu kredytu hipotecznego

Negocjujemy w Twoim imieniu
pomożemy Ci uzyskać najlepszą cenę a następnie pomożemy ze sprawami notarialnymi

Interesuje Cię ta oferta?

Wypełnij formularz, skontaktujemy się z Tobą i przekażemy jeszcze pełniejsze informacje o ofercie.
Nota prawna: Informacje dotyczące opisu nieruchomości podane są przez właściciela, mają charakter wyłącznie informacyjny i mogą podlegać aktualizacji. Oferta dotycząca nieruchomości stanowi zaproszenie do rokowań zgodnie z art. 71 Kodeksu Cywilnego i nie stanowi oferty określonej w art. 66 i następnych KC.