Mieszkanie w domu dwurodzinnym, z ogródkiem i garażem | Sosnowiec ul. Julianna Tuwima
ZADZWOŃ: 515 594 047
Współpracując z HomeOn Sosnowiec biurem działającym na terenie Śląska i Zagłębia otrzymujesz pełną obsługę.
KUPIMY TWOJE dotychczasowe MIESZKANIE LUB DOM ZA GOTÓWKĘ, przyjmiemy je w rozliczeniu za nowo nabywaną nieruchomość lub pomożemy w uzyskaniu atrakcyjnego kredytu hipotecznego (na zakup i remont).
INFORMACJE I DANE TECHNICZNE (KW).
Pow. mieszkalna: 45.16 m2 + piwnica 20,42 m2
Pow. działki: 577 m2 w udziałach po 1/2 z właścicielem mieszkania nr 1.
Liczba kondygnacji: 1
kondygnacja: 1
Balkon: nie
Stan działki: zagospodarowana
Dojazd: asfalt (droga publiczna)
Ogrodzenie działki: metalowe
Garaż: blaszany 3×5
Identyfikator działki: 247501_1.0012.2478Nr. działki 534/42, o powierzchni 314 m2 oraz 534/41 do części wspólnych – 220 m2
Materiał budowlany: cegła
Elewacja: tynk
Okna: PCV
Konstrukcja dachu: drewniana
Dach: papa
Kanalizacja: kanalizacja miejska
Media: Prąd, woda, gaz
Ogrzewanie: CO własne (piec dwufunkcyjny Viessmann + nowa infrastruktura oraz grzejniki czołowe)
Wentylacja: grawitacyjna
Na sprzedaż przestronne mieszkanie w domu dwu rodzinnym o powierzchni mieszkalnej 45,16 m2, znajdujący się na zielonej i wygodnej działce o powierzchni 577 m2. Nieruchomość jest zlokalizowana w Sosnowcu przy ul. Julianna Tuwima. W jej skład wchodzi mieszkanie na 1 kondygnacji, budynek z podpiwniczeniem i garażem oraz ogródkiem. Całość jest ogrodzona a do nieruchomości prowadzi wygodny asfaltowy dojazd.
W PEŁNI FUNKCJONALNY UKŁAD, który dopasujesz do potrzeb!
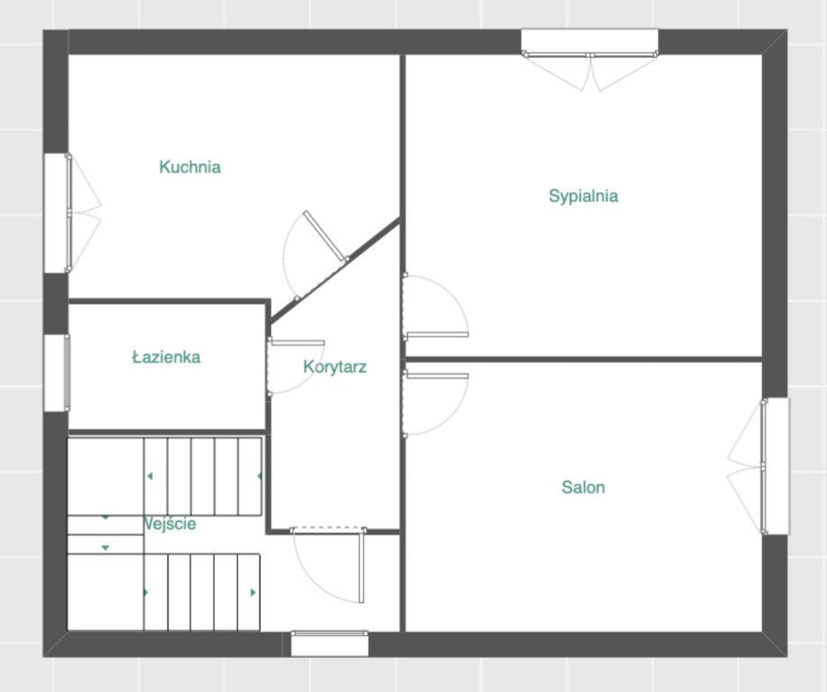
(rzuty kondygnacji zdjęcie nr )
Nieruchomość posiada ogromny potencjał i dużą przestrzeń w każdym pomieszczeniu – układ posiadający 2 pokoje, kuchnię, łazienkę z WC oraz przedpokój i spiżarnie.
LOKALIZACJA, z której Ty Twoja rodzina będziecie zadowoleni.
Nieruchomość jest usytuowana w dobrze skomunikowanej dzielnicy – Niwka, dzięki czemu szybko dostaniesz się do Centrum oraz do każdego miejsca w Aglomeracji. W otoczeniu znajdziesz również przystanki komunikacji miejskiej, sklepy (m.in, Lewiatan, Biedronka, Aldi Rossmann, pepco), piekarnię, aptekę, restaurację oraz liczne punkty usługowe.
STAN TECHNICZNY, dzięki któremu masz pełną swobodę działania!
Nieruchomość do własnej aranżacji, budynek jest w dobrym stanie technicznym. Pomieszczenia wewnątrz wymagają remontu.
Mieszkanie z malowniczą działką. Układ pomieszczeń pozwoli Ci na idealne dostosowanie do swoich potrzeb, a lokalizacja sprawia, że jest to wygodne miejsce do życia dla Ciebie i Twojej rodziny.
Niniejsza prezentacja oferty nie jest ofertą w rozumieniu Kodeksu Cywilnego i ma charakter wyłącznie informacyjny. Zalecamy jej osobistą weryfikację.
MASZ PYTANIA?
Skontaktuj się z nami tak, jak Ci wygodnie:
Michał Domagała
tel: 515 594 047
email: michal.domagala@homeon.pl


