Kawalerka z wnęką | Sosnowiec ul. Bohaterów Monte Cassino
ZADZWOŃ: 506 805 872
Pamiętaj, że współpracując z HomeOn – biurem nieruchomości działającym na terenie Śląska i Zagłębia, otrzymujesz pełną obsługę.
Pomoc w finansowaniu zakupu: KUPIMY TWOJE dotychczasowe MIESZKANIE LUB DOM ZA GOTÓWKĘ, możliwa ZAMIANA, lub pomożemy w uzyskaniu KORZYSTNEGO KREDYTU (na zakup i remont).
Wesprzemy Cię w uzyskaniu ATRAKCYJNEJ CENY zakupu, a następnie zapewnimy pełną obsługę notarialną wraz z weryfikacją nieruchomości.
INFORMACJE I DANE TECHNICZNE (SW)
Powierzchnia mieszkalna : 32,94 m2
Piwnica: tak
Piętro: 7
Balkon: nie
Czynsz (SM): 585,08 zł
Opłaty w czynszu: CO, fundusz remontowy, eksploatacja,
Opłaty wg liczników: prąd, woda, gaz
Woda ciepła: z sieci miejskiej
Ogrzewanie: miejskie bez podzielników
Dostępne media: prąd, woda, gaz, kanalizacja, internet, telefon, TV kablowa
Okna: PCV – ekspozycja zachodnia
Domofon: tak
Parking: ogólnodostępny
Na sprzedaż kawalerka z wnęką zlokalizowana na zadbanym osiedlu przy ul. Bohaterów Monte Cassino. Budynek jest w dobrym stanie technicznym po termomodernizacji, wejście do klatki schodowej zostało zabezpieczone domofonem oraz monitoringiem. Do mieszkania przynależy piwnica.
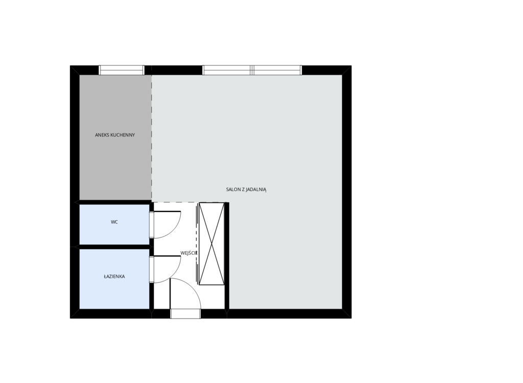
ŚWIETNY ROZKŁAD, który daje Ci pełną funkcjonalność.
(Rzut patrz zdjęcie nr 9). Centralnym punktem mieszkania jest pokój, z wnęką, który sprawdzi się jako salon z miejscem do wypoczynku. Dobrze zorganizowana kuchnia pomieści wszystkie niezbędne rzeczy zachowując przestrzeń do przygotowania posiłków. Łazienka posiadająca odpowiednią powierzchnię została wyposażona w wannę, dodatkowym atutem jest osobne WC, przedpokój z miejscem na szafę to kolejne funkcjonalne pomieszczenie, dzięki któremu z łatwością zorganizujesz wszystkie niezbędne rzeczy.
DOSKONAŁA LOKALIZACJA, z której wszędzie będziesz miał blisko.
Mieszkanie znajduje się przy ulicy Bohaterów Monte Cassino. W otoczeniu osiedla znajdziesz przystanki komunikacji miejskiej, sklepy między innymi Kaufland, Biedronkę, targowisko oraz liczne punkty usługowe.
W cenie możesz otrzymać wyposażenie:
Kuchni: meble, piekarnik elektryczno – gazowy, zmywarkę, lodówkę,
Przedpokoju: szafę wolnostojącą
Łazienki i wc: całość bez pralki
Nieruchomość, która dzięki układowi pomieszczeń zyskuje na funkcjonalności.
Mieszkanie, które dzięki lokalizacji oraz rozkładowi doskonale sprawdzi się jako inwestycja na wynajem lub wygodne miejsce do życia.
MASZ PYTANIA?
Skontaktuj się z nami tak, jak Ci wygodnie:
Sebastian Orzechowski Tel. 506 805 872
e-mail: sebastian.orzechowski@homeon.pl


