Domek letniskowy na działce rekreacyjnej nad jeziorem Przeczyckim!
Zadzwoń 515 594 047
Pamiętaj, że współpracując z HomeOn – biurem nieruchomości działającym na terenie Śląska i Zagłębia, otrzymujesz pełną obsługę. Pomoc w finansowaniu zakupu KUPIMY TWOJE dotychczasowe MIESZKANIE LUB DOM ZA GOTÓWKĘ, przyjmiemy je w rozliczeniu za nowo nabywaną nieruchomość lub pomożemy w uzyskaniu atrakcyjnego kredytu hipotecznego (na zakup i remont).
INFORMACJE I DANE TECHNICZNE
Pow użytkowa: 81 m2
pow. zabudowy: 43 m2
Kubatura: 139 m2
pomieszczenie gospodarcze: wolnostojąca altanka na przyrządy ogrodnicze.
Pow. działki: 299 m2
Stan działki: zagospodarowana
Media: prąd, woda
Kanalizacja: miejska
STANDARD WYKONANIA
Materiał budowlany: beton – drewno
Fundament: betonowy
Stropy: drewniany
Pokrycie dachowe: blacha
Stolarka okienna: PCV
Rolety antywłamaniowe mechaniczne
Stolarka drzwiowa: drewniane
Ogrzewanie: piec koza na drewno
Ogrodzenie działki: siatka
Brama wjazdowa: metalowa manualna
Zagospodarowanie działki: zieleń ozdobna, drzewa, krzewy
Na sprzedaż przestronny 3-poziomowy domek w stylu „Brda” o powierzchni mieszkalnej 75,91 m2, znajdujący się na zielonej działce o powierzchni 299 m2, zlokalizowany w Boguchwałowicach nad jeziorem Przeczyckim (Gmina Mierzęcice).
Na terenie działki znajdują się dodatkowa altan gospodarcza. Budynek jest w dobrym stanie technicznym. Do nieruchomości prowadzi utwardzony dojazd.
ŚWIETNY ROZKŁAD, który zapewni Ci pełną funkcjonalność i wiele możliwości aranżacji.
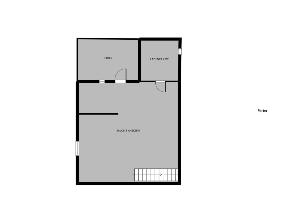
(Rzut pomieszczeń – zdjęcie nr.
Parter – 24,96 m2 – składa się z salonu, kuchni oraz łazienki z wc.
1 piętro – 20,85 m2 – sypialnia z wyjściem na taras oraz wejściem na poziom 2
2 piętro – 13,17 m2 sypialnia z dwoma łóżkami
DOBRY STAN TECHNICZNY, który daje Ci pełną swobodę działania.
Domek w dobrym stanie technicznym, na podłodze panele oraz płytki, na ścianach kamień ozdobny oraz płyty, okna PCV oraz rolety manualne.
BARDZO DOBRA LOKALIZACJA, Nieruchomość położona przy spokojnej ulicy Nadbrzeżnej, zaledwie 100 m od Jeziora Przeczyckiego. Okolica cicha i zielona, idealna na wypoczynek.W pobliżu droga S1 (~4,7 km) i DK78, zapewniające szybki dojazd do Katowic (~26 km), Dąbrowy Górniczej i Siewierza.
Działka ogrodzona siatką, z dostępem do mediów (prąd, woda, kanalizacja). Teren z potencjałem – rejon Boguchwałowic rozwijany jest jako strefa wypoczynkowo-rekreacyjna.
W razie wszelkich pytań (nieruchomość, kredyt na zakup) zadzwoń, zapytaj i umów się ze mną na prezentację.
MASZ PYTANIA?
Skontaktuj się z nami tak, jak Ci wygodnie:
Michał Domagała Tel. 515 594 047
e-mail: michal.domagala@homeon.pl


