4 rodzinne pokoje, nowoczesny układ! Środula | Sosnowiec ul. Rodakowskiego
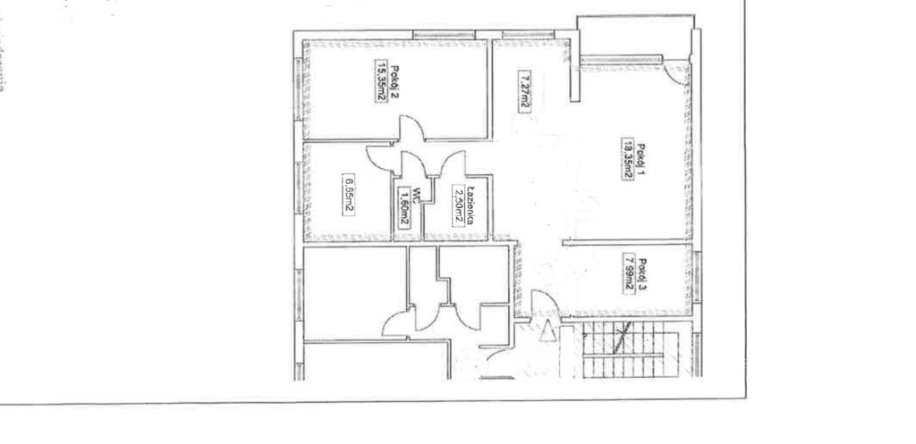
W obecnym stanie nieruchomość posiada 3 pokoje, po wyburzeniu ścianki między 4 pokojem i przedpokojem powstał duży przedpokój, w łatwy sposób nieruchomość można przywrócić do stanu pierwotnego z czterema osobnymi pokojami.
ZADZWOŃ: 506 805 872
Pamiętaj, że współpracując z Homeon – biurem nieruchomości działającym na terenie Śląska i Zagłębia, otrzymujesz pełną obsługę.
Pomoc w finansowaniu zakupu: KUPIMY TWOJE dotychczasowe MIESZKANIE LUB DOM ZA GOTÓWKĘ, możliwa ZAMIANA, lub pomożemy w uzyskaniu KORZYSTNEGO KREDYTU (na zakup i remont).
Wesprzemy Cię w uzyskaniu ATRAKCYJNEJ CENY zakupu, a następnie zapewnimy pełną obsługę notarialną wraz z weryfikacją nieruchomości.
INFORMACJE I DANE TECHNICZNE (SW Z KW)
Powierzchnia mieszkalna : 72,74 m2
Piwnica: tak ok 7,5m2
Balkon: tak
Czynsz (SM): 963,58 zł na 1 osobę
Opłaty w czynszu: C.O, fundusz remontowy, eksploatacja, śmieci, gaz, woda
Opłaty wg liczników: prąd, woda
Woda ciepła: wodociąg miejski
Ogrzewanie: C.O. miejskie ( z podzielnikami)
Dostępne media: prąd, woda, kanalizacja, internet, telefon, TV kablowa
Okna: PCV ekspozycja na 3 strony, płd-zach, płd, wsch
Domofon: tak
Parking: przy budynku ogólnodostępny
Na sprzedaż 4 przestronne pokoje z balkonem. Nieruchomość zlokalizowana jest na popularnym Osiedlu przy ul. Rodakowskiego (Środula). Budynek jest w dobrym stanie technicznym po termomodernizacji i posiada zadbaną klatkę schodową. Za dodatkowe poczucie bezpieczeństwa odpowiada domofon oraz miłe i spokoje sąsiedztwo.
Do mieszkania przynależy również duża piwnica (ok. 7,5m2) w której możesz przechowywać np wózek dziecięcy.
ŚWIETNY ROZKŁAD, który daje Ci pełną funkcjonalność.
( Rzut stanu obecnego patrz zdjęcie nr 11 ). Centralnym punktem mieszkania jest przestronny salon (z wyjściem na balkon) połączony kuchnią, otwarta przestrzeń to funkcjonalne połączenie strefy wypoczynku z miejscem do przyrządzania i spożywania posiłków. Ustawne trzy pokoje, zaaranżujesz dokładnie tak, jak sobie życzysz urządzając np. sypialnie i pokoje dziecięce. Łazienka posiadająca odpowiednią powierzchnię została wyposażona w kabinę prysznicową. Dodatkowym atutem jest osobne WC, które doskonale się sprawdza przy większej ilości domowników. Przedpokój posiada szafę w zabudowie, dzięki czemu z łatwością zorganizujesz garderobę i wszystkie niezbędne rzeczy.
DOSKONAŁA LOKALIZACJA, z której Ty i Twoje dzieci wszędzie będziecie mieć blisko.
Nieruchomość zlokalizowana jest w dzielnicy Środula, która jest bardzo dobrze skomunikowana z Centrum oraz z całą Aglomeracją. W otoczeniu znajdziesz również liczne przystanki komunikacji miejskiej (autobusowe i tramwajowe), sklepy (Stokrotka, Lidl), Centrum Handlowe Plejada, restaurację, piekarnię oraz liczne punkty usługowe.
Lokalizacja zapewnia również udogodnienia dla rodzin z dziećmi. W bezpośrednim sąsiedztwie znajduje się szkoła, przedszkole oraz plac zabaw.
Nieopodal znajduje się zrewitalizowany Park Środula, dzięki czemu z łatwością zorganizujesz czas wolny na świeżym powietrzu.
STAN TECHNICZNY nieruchomość jest zadbana, schludna, dla osób bardziej wymagających do remontu.
Na podłogach są położone panele oraz płytki, na ścianach zrobione są tapety, kamień i gładzie. Drzwi wejściowe antywłamaniowe, piony wymienione.
W cenie możesz otrzymać również wyposażenie:
Pokoi: narożnik, komodę, kanapę, 2x fotel, stół, meble
Kuchni: Meble w zabudowie, okap, piekarnik elektryczny, płytę grzewczą gazową
Łazienki i WC: całość bez pralki
przedpokoju: 2x szafę, szafkę na buty, wieszak na ubrania
Mieszkanie w popularnej lokalizacji, które urządzisz tak jak chcesz. Przestronny metraż i nowoczesny układ będzie wygodnym miejscem do życia dla Ciebie i Twojej rodziny.
Powierzchnie:
Pokój 1 – 18,35m2
Pokój 2 – 15,35m2
Pokój 3 – 7,99 m2
Pokój 4 – 6,65 m2
Kuchnia – 7,27m2
przedpokój – 13,03 m2
łazienka – 2,50m2
wc – 1,60 m2
MASZ PYTANIA?
Skontaktuj się z nami tak, jak Ci wygodnie:
Sebastian Orzechowski Tel. 506 805 872
e-mail: sebastian.orzechowski@homeon.pl


